【机情无限 精彩毕设】机械2024届毕业设计(论文)中期检查优秀案例分享第十期——北京市某综合政务中心建筑A区暖通空调设计
学生姓名:张宇恒
班班级级:建环2020-01班
指导教师:余涛
毕设题目:北京市某综合政务中心建筑A区暖通空调设计

一、概况
1.选题意义
目前,绿色建筑、低能耗建筑等的概念已在暖通行业中逐渐流行起来,现在对建筑的暖通设计更加注重绿色和低碳的目标,因此,我们要平衡好热舒适与节能的要求,以求设计出既有舒适的热环境,又低排放、节能绿色的建筑。
政务中心是一个城市政治生活的中心,是提供给政府机关工作人员办公行政的建筑。因此,设计一个舒适的热环境,不仅有利于工作人员的身心健康,还能能提高人员的工作效率。本设计旨在通过理论计算与研究,通过对制冷、供暖设备的比较与选择,营造一个舒适的室内环境,提高在该政务中心工作的人员的舒适性。根据北京市的气候条件,该建筑夏季供冷,冬季供暖,且供暖时间与供冷时间长度相当。该政务中心功能区多样,一层主要是职工餐厅、宴会厅、健身房、办公室、市民服务大厅、信访大厅、警卫值班室等房间,二层则主要是商务套间、标准间、服务台、城市展厅、新闻发布厅、办公室、咖啡厅等,三、四层还有超大型报告厅、档案资料室等房间,五层至十一层主要是会议室和办公室,十二层则是机房层。其中多数为办公区域,非办公区域则主要集中在一层,如何处理好办公区域与非办公区域的负荷是暖通空调设计的一大难点。同时,高大的办公建筑中存在着负荷特征显著区别于一般外区的内区区域,这部分的设计也是此次毕业设计中的重要内容。
此次毕业设计主要是应用入学以来所学的专业课知识在节能与规范的前提下为北京市的政务中心作暖通设计,通过负荷计算、空气调节、气流组织等计算与设计,给出关于该政务中心的供冷、制暖方案。同时,也希望通过此次设计,将所学的专业课知识进行综合运用和锻炼,强化专业技能,提升专业素养,提升自身对所学知识的整体掌握与运用能力,对相关软件如天正暖通的综合使用能力,加深对实际工程项目设计与运行的理解,综合提高暖通空调工程设计能力,加强对国家和地区规范的查阅能力,开拓本专业在设计前沿技术的视野,为将来的工作作必要的提前准备,打下坚实基础。
2.任务分解
(1)空调负荷计算:收集相关设计国家标准以及北京市地方设计规范,进行文献调研,总结方法。采用天正暖通软件以谐波法对各层负荷进行详细计算,再使用冷负荷系数法进行手算对软件计算结果进行校核分析。
(2)冷热源方案的确定:根据建筑的冷、热负荷与当地能源特征进行冷热源方案的组合,并在技术经济比较基础之上对冷热源方案进行确定。
(3)空调方案确定:根据不同房间的不同用途和需求的温湿度条件对建筑物的不同区域所采用的不同的空调系统进行划分与确定。
(4)空气处理过程分析:对夏冬季工况空调过程进行计算分析,得到相应的风量、新风量、送风参数等,并对相关设备进行选型与校核。
(5)气流组织计算:对空调风系统进行气流组织计算,设计送风口形式,风口位置、数量,送风参数,回风口布置并进行校核,确保人员舒适性。
(6)空调水系统、 风系统的水力计算:使用天正暖通软件对空调系统的风管和水管进行设计、布置,并计算各段水管与风管的水力,确定各管段管径,阻力损失,系统总损失,根据计算结果确定其他设备包括风机、水泵等的选型。
(7)设备选型:对该空调系统所需要的各类设备进行选择,包括末端设备、空调处理设备、冷源中心设备、动力循环设备、调节控制附件等。
(8)自控方案设计:对自动控制方案进行设计,根据不同季节运行时的负荷特征,对不同的设备的自动化控制进行计算和阐述。
(9)绘制图纸:各层空调、风系统、水系统平面图,制冷机房平面图、工艺流程图、有关剖面图。
(10)撰写毕业设计说明书:包括所有的设计计算和分析过程、计算结果,设备选型计算、水力计算过程和结果的说明。
(11)翻译外文文献,完成文献综述。
二、已完成工作
1.完成了文献综述和外文翻译。查阅了有关政务中心的设计范例、冷源与热源的运行方法、各种功能房间的空气调节处理方法等文献,了解了办公建筑内部的一般设计方法,冷水机组、冰蓄冷系统、风冷热泵、燃气锅炉等冷热源的运行条件与过程,内外区的空调处理方法,高大空间的气流组织设计示例等,对此次设计中将会遇到的重点和难点有了较为系统的了解并掌握了一定的处理能力。
图1-1 文献翻译及文献综述图
2.完成了负荷计算,并已用手算进行验证,计算所得夏季冷负荷为1533.6kW,冬季热负荷为1715.5kW,具体各层负荷计算结果详细如下:
表1-1 负荷计算结果

3.完成了冷热源方案的比选,经过投资回收期法与全生命周期法的计算验证,最终选用冷水机组+城市热网的热源方案。
4.完成了空调分区与空气处理过程的设计,结果如下:

图1-2 设备分区方案
表1-2 空调形式设计
楼层 | 区域 | 空调形式 | 空气处理设备 |
一层 | 职工餐厅 | CAV | 全热回收定风量空调机组 |
宴会厅(内区) | CAV | 全热回收定风量空调机组 | |
市民服务大厅+正后门大厅 | CAV | 全热回收定风量空调机组 | |
信访大厅+办公室+值班室 | FCU+OA | 风机盘管+新风机组 | |
娱乐健身区域+保安控制室 | FCU+OA | 风机盘管+新风机组 | |
二层 | 正门大厅 | CAV | 全热回收定风量空调机组 |
商务客房+服务间+办公室 | FCU+OA | 风机盘管+新风机组 | |
办公室 | FCU+OA | 风机盘管+新风机组 | |
城市展厅 | FCU+OA | 风机盘管+新风机组 | |
新闻发布厅 | FCU+OA | 风机盘管+新风机组 |
(1)完成了风机盘管+新风系统夏、冬季空气处理过程的设计。
(2)完成了全空气系统夏、冬季空气处理过程的设计。
(3)完成内区全空气系统夏、冬季空气处理过程的设计。
(4)完成了内区风机盘管系统夏、冬季空气处理过程的设计。
5.完成了气流组织设计,包括散流器、侧送喷口、侧送风口及回风口的设计与校核。
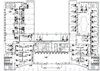
6.完成了政务中心A区的风系统及水系统的初步设计草图,并完成了风管与水管的水力计算。

图1-3 风系统图设计
表1-3水管最不利环路计算结果汇总
水系统段 | 阻力段 | 阻力 | 最不利环路阻力 |
冷冻水系统 | 水平管阻力 | 89.5kPa | 120.3kPa |
立管阻力 | 6.5kPa | ||
分水器至立管段阻力 | 4.3kPa | ||
机房冷冻水环路阻力 | 20.0kPa | ||
冷却水系统 | 机房冷却水环路阻力 | 32.9kPa | 32.9kPa |
7.完成了主机、冷冻水泵、冷却水泵、热水泵、冷却塔的选型。
三、下一步工作计划
1.根据水力计算的结果完成全部的设备选型。
2.继续完善风系统与水系统施工图,优化管线排布。
3.绘制机房施工图、机房冷热源示意图,实习参观工程项目实例,掌握机房设备设计能力,绘制相关图纸。
4.完成包括保温、消声、隔震等方面的设计。
5.分析各个区域与分区的负荷变化特征、使用时间分布,结合节能设计方案,完成控制部分的设计。
6.完成设计说明书及全部图纸绘制,检查毕设完成情况,准备结题答辩。

问题一:如何分析与处理空调内区?
回答:在设计内区的空气处理过程时,因其全年冷负荷的特性,需在冬季供冷,如在冬季为其配套设计冷源,会使管线设计复杂,同时也缺少空间放置冷源设备。本设计针对该问题,增大了该部分区域新风机的送风能力,在冬季不启动室内风机而采用全新风形式送风以充分利用免费冷源,降低能耗,节约资源。
问题二:办公区域与非办公区域是不同的使用时间,如果全天开启冷热源会造成较大的浪费,该如何处理这个问题?
回答:不同区域的使用时间不一致,办公区域与非办公区域需要供冷、供热的时间不同,如使用同一套立管,将造成冷源长时间的大功率开启,造成资源浪费。在设计时,我将整个建筑按使用时间不同分成了三个区域,分别是办公区域、客房区域、其他区域,办公区域主要包括所有的办公室、服务大厅、会议室等白天使用的房间,客房区域主要是商务套房等需全天进行空气调节的区域,其他区域则是包括职工餐厅、宴会厅、健身房等的白天延长时间开启的区域。故在设计水管时,将该三个区域的水管分开设计,办公时间结束后,冷源转入低负载状态下运行为其他区域供冷。此外,客房区域需全天可调节,采用独立冷源单独供冷。

毕业设计作为学习工作阶段承上启下的关键一步,既是对本科四年所学的所有专业课的综合运用,又是包涵了工作需要、软件运用、工程实际要素的综合锻炼。不仅提升了我们对现有知识的总结运用能力,也加强了我们收集资料、查阅文献、学习新方法的技能。
在设计的过程中,对所有的参数选择、条件设置等都要细致考虑、反复核算,必须实事求是地结合实际施工条件进行各个细节的设计。
反复地修改与计算校核成为了毕业设计中最主要的一个部分,不断地发现新问题,不断地解决问题,是自己的设计方案趋于合理与完善,我们学到的不仅是专业知识和能力,更是一种一丝不苟、精益求精的学习工作精神。
同时,与其他同学通力合作、共同讨论并解决相关问题,结合老师的耐心指导,我相信我的毕业设计会更加完善与合理。
毕业设计以至中期,仍有很多问题等着我去发现并解决,我要以更加严谨、认真的态度去完成全部设计内容,在美好的五月呈上一份满意的成果!